Chemical Supply System For Decontamination Chambers | 3D Engineering Design File

0.0(0 reviews)
Chemical
Industrial Application
3D Engineering Design
Chemical Supply System
Decontamination Chambers
Logo
sprite x=0 y=0
Angle x=0 y=0
Angle x=0 y=60
Angle x=0 y=120
Angle x=30 y=0
Angle x=330 y=0

About this design

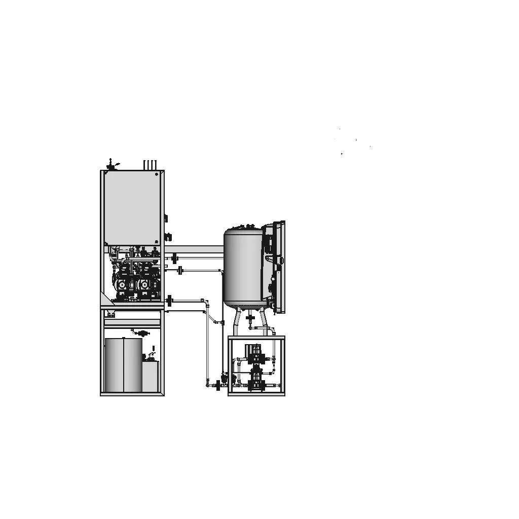
A detailed representation of Chemical Supply System For Decontamination Chambers, compatible with standard CAD software for industrial applications.

Free

<100
<100

The files are shared to help you get inspired and speed up your workflow. They may not be fully accurate or production-ready, so review carefully before use.

View NameExtensionAction
Design filestep
Front Viewwebp
Top Viewwebp
Bottom Viewwebp
Left Side Viewwebp
Right Side Viewwebp
Isometric Viewwebp
Supporting Files (0)
File NameAction
No supporting files

About CAD

The CAD model comprises 105332 faces, 276661 edges, 182925 vertices. Surface types include 56201 planar, 29610 cylindrical, 6486 conical, 2291 spherical, 5490 toroidal, 5254 other surfaces. Orientations: 35087 along the X-axis, 35041 along the Y-axis, 33996 along the Z-axis, 1208 with various orientations. Model dimensions: 2450.00 mm wide, 3155.32 mm high, 2306.00 mm deep

File Information
File NameChemical supply system fo...
File TypeSTEP
Unitsmm
Geometry
Faces105,332
Edges276,661
Vertices182,925
Solids0
Surfaces
Planar56,201
Cylindrical29,610
Conical6,486
Spherical2,291
Toroidal5,490
Other5,254
Surface Orientations
X Axis35,087
Y Axis35,041
Z Axis33,996
Other1,208
Bounding Box
Width2450.00 mm
Height3155.32 mm
Depth2306.00 mm

Comments

0
Y
Loading comments...

Marathon-OS Design Hub

Everything you need to design faster, smarter, and with more impact.

Brass 0.4mm V6 Nozzle CAD Model
Brass 0.4mm V6 Nozzle CAD Model
3 in 1 Out CNC Machinable Hotend with Unique Geometry
3 in 1 Out CNC Machinable Hotend with Unique Geometry
Maximum Bite Plant V2 1 | 3D CAD Engineering Model
Maximum Bite Plant V2 1 | 3D CAD Engineering Model
Dragon Egg | 3D Engineering Design File
Dragon Egg | 3D Engineering Design File
Amass Xn60Be-M | 3D Engineering Design File
Amass Xn60Be-M | 3D Engineering Design File
Gigablox Rugged | 3D Engineering Design File
Gigablox Rugged | 3D Engineering Design File
Kaffeefilterhalter 1 | 3D CAD Engineering Model
Kaffeefilterhalter 1 | 3D CAD Engineering Model
Gopro 1 6Mm Board Mount 1 | 3D CAD Engineering Model
Gopro 1 6Mm Board Mount 1 | 3D CAD Engineering Model
3D Printer - Downloadable CAD Representation
3D Printer - Downloadable CAD Representation
Stanley Cup Holder 1 | 3D CAD Engineering Model
Stanley Cup Holder 1 | 3D CAD Engineering Model
Iphone Charging Stand 1 | 3D CAD Engineering Model
Iphone Charging Stand 1 | 3D CAD Engineering Model
Corrected CYD Screen Model for Bambulab 3D Printer
Corrected CYD Screen Model for Bambulab 3D Printer
Triaugmented Dodecahedron 1 | 3D CAD Engineering Model
Triaugmented Dodecahedron 1 | 3D CAD Engineering Model
Minipc Fan Shroud 1 | 3D CAD Engineering Model
Minipc Fan Shroud 1 | 3D CAD Engineering Model
Bass Sign 2 | 3D CAD Engineering Model
Bass Sign 2 | 3D CAD Engineering Model
The Herb Typhoon 3D Printed Cyclonic Mauling Weed Grinder 1 | Professional CAD Design
The Herb Typhoon 3D Printed Cyclonic Mauling Weed Grinder 1 | Professional CAD Design
View all designs

Recently added / Trending

Everything you need to design faster, smarter, and with more impact.

Nasa_Fuel_Coupling_Shear_Off - Standard Mechanical Component
Nasa_Fuel_Coupling_Shear_Off - Standard Mechanical Component
Olive Tree - Standard Mechanical Component
Olive Tree - Standard Mechanical Component
Зиларт | 3D Engineering Design File
Зиларт | 3D Engineering Design File
Ring With Wolf Inscription - Downloadable CAD Representation
Ring With Wolf Inscription - Downloadable CAD Representation
Rjdincat6A 1 | CAD Model for Energy Systems
Rjdincat6A 1 | CAD Model for Energy Systems
Makita Battery Charger (Dc18Rc) Bracket: Wall-Mount Or For Pegboard - Downloadable CAD Representation
Makita Battery Charger (Dc18Rc) Bracket: Wall-Mount Or For Pegboard - Downloadable CAD Representation
F450 Landing Skid Extension 1 | 3D CAD Engineering Model
F450 Landing Skid Extension 1 | 3D CAD Engineering Model
Ball Socket Swivel Fitting for Air Hose with 360° Rotation and 40° Gimbal
Ball Socket Swivel Fitting for Air Hose with 360° Rotation and 40° Gimbal
Silo - Standard Mechanical Component
Silo - Standard Mechanical Component
Prt-16766 | 3D Engineering Design File
Prt-16766 | 3D Engineering Design File
View all designs

Free Online CAD Viewer –Secure, Fast & Cloud-Based

A lightweight, online tool to convert 3D file formats—anytime, anywhere, without installing any software.

Drag & drop your 3D files

Supported formats: STEP (.step, .stp), IGES (.igs, .iges), STL (.stl), PLY (.ply), OFF (.off), BREP (.brp, .brep)

upload
Don't have a file? Try one of these samples:


CAD Viewer featureOpen CAD files instantly in your browser.
CAD Viewer featureNo software needed.
CAD Viewer featurePrivate uploads.
CAD Viewer featureAutomatically deleted after 24hrs.
CAD Viewer featureUpload files up to 300 MB

Need a file that doesn't exist in the library?

Describe your requirement and we'll match you with a vetted CAD expert. SolidWorks, AutoCAD, Revit, Fusion 360 and 15+ tools supported.